KYN28□-12(GZSI)铠装移开式交流金属封闭开关设备
产品介绍
KYN28A-12型户内交流金属铠装移开式开关设备,系额定电压3.6-12kV三相交流50Hz单母线及单母线分段系统的成套配电装置。主要用于发电厂、变电站、工矿企事业单位等变配电场所以及电业系统二次变电所的受电、配送电及大型高压电动机启动等,实现控制、保护、检测之目的。
本开关柜能满足GB3906、DL/T593等标准要求 ,并且具有防止误操作断路器、防止带负荷拉手车、防止带电关合接地开关、防止接地开关在接地位置时送电和防止误入带电隔离等“五防”功能。开关柜既可配用ABB公司的VD4真空断路器,又可配用国产的VS1真空断路器,实为一种性能优越的配电装置 。
使用环境条件
海拔高度不超过1000m。
环境温度上限+40°C;下限-10°C。
相对湿度日平均值不超过95%,月平均值不超过90%。
水蒸气压力日平均值不超过2.2kPa,月平均值不超过90%。
周围环境没有火灾、爆炸危险、严重污秽、化学腐蚀、剧烈震动的场所。
地震烈度不超过8度。
型号及其含义

结构特点
柜体结构采用敷铝锌板经CNC机床使用多重折弯工艺加工之后栓接而成,所有操作均在柜门关闭状态下进行;防护等级高,可防止杂物和虫害侵入。
柜体可靠墙安装、柜前维护,减少占地面积;电缆室空间充裕、 可连接多根电缆;断路器室和电缆室可分别加装加热器,防止凝露与腐蚀发生。
开关柜由固定的柜体和可抽出部分(手车)两部分组成,柜体外壳和各功能单元的隔板均敷铝锌钢板栓接而成,开关的外壳防护等级达到IP40 ,各隔室的防护等级为IP20 ,开关柜具有架空进出线、电缆进出线及左右联络功能,可以根据用途将各方案的开关柜排列组成能完成设计功能的配电装置。
主要技术参数

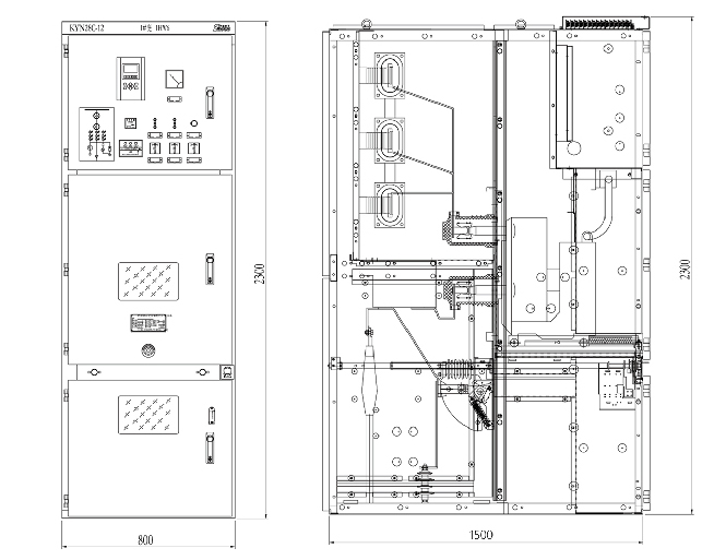
开关柜外形及尺寸

Copyright © 2021 金年会下载 All rights reserved 冀ICP备20001050号-4
